ママ 楽 間取り
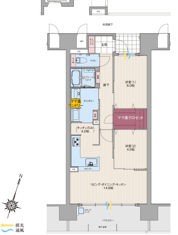
アルファステイツ豊見城城址公園の3ldk ママ楽クロゼット印刷画面 アットホーム 新築マンション 分譲マンション購入情報
41坪 間取り 家事楽サポートと家族の絆深める家 兵庫県でモデルルームならアイフルホーム
らくまま動線 28坪 間取り 35坪 間取り 32坪 間取り
大人気ママ楽動線のあるプラン 仙台 石巻 黒川郡の木造 注文住宅や土地ならパルコホーム宮城
ママ クチュール愛野モデルも好評分譲中 袋井愛野モデルハウスをご紹介 家づくりコラム
生活提案 注文住宅のアルネットホーム
ママ楽の家 Simple Style 北上市のタウン情報 ソシアル
忙しいママたちを応援 ママ目線の間取り3選 ファイネスホーム 吉川住建 岡崎 名古屋 豊田の新築一戸建て注文住宅 株式会社吉川住建のブログ
ママ楽なレイアウトでふれあい時間を増やす ミセスワークスペース のあるモデルハウス 間取り プラン検索 京阪神 京阪沿線で育みデザインの一戸建てを展開する富士住研
生活提案 注文住宅のアルネットホーム
Suumo 間取り図 C 詳細 アルファステイツ城西公園ii 新築マンション物件情報
日々の暮らしをラクにする Lotus ロータス 注文住宅のアルネットホーム
41坪 間取り 家事楽サポートと家族の絆深める家 兵庫県でモデルルームならアイフルホーム
Suumo 間取り図 C 詳細 アルファステイツ豊見城城址公園 新築マンション物件情報
Suumo 間取り図 A 詳細 アルファステイツ城西公園ii 新築マンション物件情報
住宅商品 子育てママの家 ステラ 収納充実 家事らくプラン 家 35坪 間取り 間取り
きょうだい仲良く遊べる 秘密基地のような共有スペースわくわくボックスのある住まい 間取り プラン検索 京阪神 京阪沿線で育みデザインの一戸建てを展開する富士住研
ママ楽応援住宅 Ki Lala キ ララ 住起産業建築サイト
共働き夫婦の家 三重 伊賀 名張 津の注文住宅は森大建地産
Suumo 間取り図 A 詳細 アルファステイツ高知駅前ii 新築マンション物件情報
46坪 間取り ママを助ける家事楽の家 兵庫県で二世帯住宅ならアイフルホーム
女性が暮らしやすい家づくり コラム エコハウス 自然素材の家 リノベーションサイト
アルファスマート高松通りの3ldk ママ楽 クロゼット ウォークインクロゼット マルチサニタリー印刷画面 アットホーム 新築マンション 分譲マンション購入情報
アルファステイツ飯倉の3ldk ママ楽クロゼット印刷画面 アットホーム 新築マンション 分譲マンション購入情報
Q Tbn 3aand9gcrr66usovlmibbchontqzd0dhe8lii8ps2i1tukn4t21takj19j Usqp Cau
計算された動線で楽家事プラン 茨城セキスイハイム 茨城県の住宅メーカー ハウスメーカー
ホームズ 間取り タイプ一覧 アルファステイツ城西公園ii新築マンションの物件情報
ママ楽応援住宅 Ki Lala キ ララ 住起産業建築サイト
とても好評の相談会 ママ楽 家事導線を優先した間取り相談会 新のイベント セミナー情報 ユートピア建設
4ldk間取りプラン 忙しいママを助ける家 Forcasaの家 船橋市の注文住宅の間取り 平面図 間取り 住宅 間取り
ホームズ 間取り タイプ一覧 アルファスマート海田月見町新築マンションの物件情報
46坪 間取り ママを助ける家事楽の家 兵庫県で二世帯住宅ならアイフルホーム
Suumo 間取り図 F 詳細 アルファステイツ城西公園ii 新築マンション物件情報
宮城県内の木造 注文住宅や土地ならパルコホーム宮城 ママ楽の家 への想い
予約制 ママ楽間取りで家族の時間を楽しむ家 静岡市完成見学会 イベント 静岡 愛知の注文住宅 工務店 株式会社福工房 土間のある木の家
ママ楽の家 仙台 石巻 黒川郡の木造 注文住宅や土地ならパルコホーム宮城
件 家事ラク 間取り おすすめの画像 間取り 家事 ラク
お申込は5 28迄 家計応援 春の Offキャンペーン 仙台 石巻 黒川郡の木造 注文住宅や土地ならパルコホーム宮城
アルファスマート海田月見町の4ldk ママ楽キッチン ママ楽ランドリー印刷画面 アットホーム 新築マンション 分譲マンション購入情報
件 家事ラク 間取り おすすめの画像 間取り 家事 ラク
家事動線のいい間取り 家事ラクになる 家事ラク室 のご提案 兵庫県 丹波市 心ほかほか春日工務店
子育てしやすい住まい 間取りと暮らし方 注文住宅 ダイワハウス
パルコホーム ドリームキャンペーン 北上市のタウン情報 ソシアル
週末内覧会開催 いわき市の高気密 高断熱の注文住宅 二世帯住宅の間取り 土地探し 新築なら福島県のすまい倶楽部
ママ楽の家 Simple Style 北上市のタウン情報 ソシアル
ゆとりの生まれる家事動線 ママ建築士のすまいブログ 間取り 40坪 間取り 家事動線
ママ楽応援住宅 Ki Lala キ ララ 住起産業建築サイト
ママ楽の家 パルコホーム
間取りの知恵を取り入れて ストレスフリーな暮らしを 注文住宅を愛知で建てるならアンシン建設工業にお任せください
Casa Blanca 緑ヶ丘25号地 マキタホーム 鳥取市内での注文住宅の設計施工 中古物件 土地売買 賃貸物件ならおまかせください
グリーンホームのこだわり 兵庫県豊岡市の株式会社上杉工務店
アルファステイツ城西公園iiの2ldk ママ楽ランドリー ママ楽クロゼット印刷画面 アットホーム 新築マンション 分譲マンション購入情報
ちょっとしたスペースがママにうれしいプラン 茨城セキスイハイム 茨城県の住宅メーカー ハウスメーカー
家事動線のいい間取り 家事ラクになる 家事ラク室 のご提案 兵庫県 丹波市 心ほかほか春日工務店
女性が暮らしやすい家づくり コラム エコハウス 自然素材の家 リノベーションサイト
41坪 間取り 家事楽サポートと家族の絆深める家 兵庫県でモデルルームならアイフルホーム
洗濯動線がスムーズな間取り
常設モデルハウス 八戸 盛岡 北上の展示場のご案内 パルコホーム
ママが笑顔になる家づくり ハウジング新潟 Sumica
忙しいママたちを応援 ママ目線の間取り3選 ファイネスホーム 吉川住建 岡崎 名古屋 豊田の新築一戸建て注文住宅 株式会社吉川住建のブログ
家事ラク 間取り おしゃれまとめの人気アイデア Pinterest まい 40坪 間取り 南玄関 間取り 35坪 間取り
子育てしやすい住まい 間取りと暮らし方 注文住宅 ダイワハウス
061 便利な玄関土間収納プラン 枚方市の不動産 新築一戸建てや樟葉のマンションなら御浜住宅株式会社
Makita City 西品治4号地 マキタホーム 鳥取市内での注文住宅の設計施工 中古物件 土地売買 賃貸物件ならおまかせください
タカシンホーム自由設計のアイムの家で 代からの新築 家づくり リフォーム 広島県三原市の工務店です
家事ラク 間取り おしゃれまとめの人気アイデア Pinterest まい 40坪 間取り 南玄関 間取り 間取り
第8回 子ども部屋新発想 ママに優しい間取り術 家づくり最新コラム 家サイト 住宅展示場ガイド
納得の価格設定 倉敷 総社で注文住宅 新築一戸建てなら倉敷ナチュラルハウス
ママ楽の家 仙台 石巻 黒川郡の木造 注文住宅や土地ならパルコホーム宮城
忙しいママたちを応援 ママ目線の間取り3選 ファイネスホーム 吉川住建 岡崎 名古屋 豊田の新築一戸建て注文住宅 株式会社吉川住建のブログ
Q Tbn 3aand9gcq5o Eg8hfei3b4fhc0knov Olxrrdijmjuh9qwmbr78xqlevv9 Usqp Cau
ママプラン 家事ラクのコンパクトなお家 大和ホーム ホーム 間取り 家事
二世帯住宅の間取りと実例 こだわりの2世帯住宅を 注文住宅のアルネットホーム
平屋住宅商品 熊本で平屋の間取り 子育てママが楽しくなる注文住宅
ママラクハウス 注文住宅のヤマト住建
家事楽な間取りで楽しく暮らそう シンプルナチュラルな家 茨城県でシンプルでかわいい注文住宅ならトリニティハウス
Q Tbn 3aand9gcq5o Eg8hfei3b4fhc0knov Olxrrdijmjuh9qwmbr78xqlevv9 Usqp Cau
ママ楽の家 仙台 石巻 黒川郡の木造 注文住宅や土地ならパルコホーム宮城
Q Tbn 3aand9gcrdommw97uhuehczia1l57q3xptmlx3uiwmgnxhc9xhv4m5losr Usqp Cau
ホームズ 間取り タイプ一覧 アルファスマート海田月見町新築マンションの物件情報
ママ楽の家 仙台 石巻 黒川郡の木造 注文住宅や土地ならパルコホーム宮城
名前のない家事 を解決 注文住宅のユニバーサルホーム
ママが笑顔になれる家 らくママの家 大木町 筑後市を中心に注文住宅 新築戸建てなら工務店の熊丸組
愛知県豊田市田中町4丁目の新築一戸建て 4130万円 の不動産 住宅の物件詳細 ハウスドゥ Com Sp スマートフォンサイト
ママとくハウス 新築戸建 不動産 埼玉のファイブイズホーム
ママらく収納の家 山根木材の家
家事が楽になる間取りを実現 家事動線の4つのポイント
宮城県内の木造 注文住宅や土地ならパルコホーム宮城 ママ楽の家 への想い
アルファステイツ豊見城城址公園の間取り3ldk 4ldk 全8戸 沖縄県豊見城市豊見城 3ldk 4ldkの新築分譲マンション グーホーム
Suumo 間取り図 F 詳細 アルファスマート青葉東 新築マンション物件情報
家事動線のいい間取り 家事ラクになる 家事ラク室 のご提案 兵庫県 丹波市 心ほかほか春日工務店
生活提案 注文住宅のアルネットホーム
宮城県内の木造 注文住宅や土地ならパルコホーム宮城 ママ楽の家 完成見学会
プラン例 ママが 喜ぶ家事動線にこだわった家 28坪 間取り 32坪 間取り Ldk 間取り
基本の間取りを選ぶ 総建ハウジング
第8回 子ども部屋新発想 ママに優しい間取り術 家づくり最新コラム 家サイト 住宅展示場ガイド
収納 動線 コンセプト 長岡の注文住宅のことなら越路建設 こしけんの家 注文住宅 土地 賃貸アパート不動産情報もお任せ下さい
共働きの奥様必見 家事を楽にする間取りとは その3 家族の自立をうながす家づくり いえ日和ブログ 千葉の分譲住宅 新築一戸建てなら住まいのフレスコ
46坪 間取り ママを助ける家事楽の家 兵庫県で二世帯住宅ならアイフルホーム
ママ楽の家 プラス 仙台 石巻 黒川郡の木造 注文住宅や土地ならパルコホーム宮城
ママが笑顔になる家づくり ハウジング新潟 Sumica
アルファステイツ城西公園iiの4ldk ママ楽ランドリー ママ楽クロゼット印刷画面 アットホーム 新築マンション 分譲マンション購入情報
ママ楽の家 仙台 石巻 黒川郡の木造 注文住宅や土地ならパルコホーム宮城
常設モデルハウス 八戸 盛岡 北上の展示場のご案内 パルコホーム


